一楼门厅
玄关以水墨纹大理石墙为视觉核心,嵌入式壁炉增添暖意,水晶吊灯强化轻奢质感;木饰面收纳架与红绒背板呼应新中式基调,艺术摆件与灯光结合,让过渡区域兼具仪式感与展示功能,成为空间的美学起点

餐厅
餐厨区以浅木色为基底,大理石岛台衔接厨房与用餐区,兼顾实用与通透;朱红座椅成为视觉焦点,圆形灯组与长虹玻璃移门呼应东方意境,暗藏灯强化层次,让空间在雅致中适配日常用餐与轻烹饪需求。

客厅
客厅以浅灰沙发为核心,墨绿、棕褐抱枕点缀出层次感,大理石茶几呼应轻奢质感;水墨纹地毯与窗外绿意呼应东方意境,落地灯与艺术画提升精致度,让空间既适配休闲放松,又显雅致格调。

品茗区
品茗区以整面木饰面书架铺垫温润氛围,浅蓝座椅平衡色调,艺术吊灯如 “飘带” 柔化空间;茶具与绿植点缀其间,既保留新中式的雅致,又以简洁线条适配现代品茗场景,实现功能与美学的统一。


阳光房
阳光房以玻璃顶引入自然光线,岩石纹墙面与仙人掌造景营造自然野趣;休闲躺椅与猫爬架兼顾人居与宠物需求,圆形灯组柔化氛围,玻璃移门衔接室内,让空间成为 “室内庭院”,适配放松与观景。

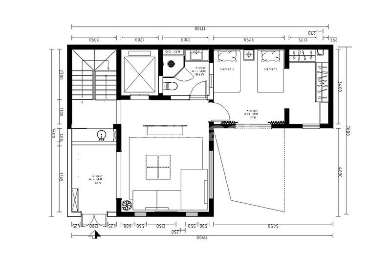
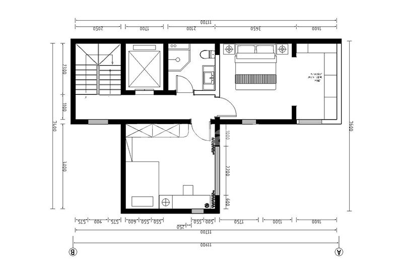
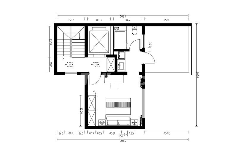
户型分析
户型功能分层明确:上层是卧室 + 卫浴,中层布局餐厨与会客区,下层设双车位车库,顶层规划双卧与起居空间,既覆盖居住、社交需求,也兼顾停车功能,整体空间利用合理,功能配置比较完善。
一层

二层

三层
