本项目以 “优雅多元 + 质感融合” 为核心,串联起轻奢客餐厨、法式卧室、艺术休闲区等空间。通过古典线条与现代软装的碰撞(如石膏线配亮色家具)、光影层次(天窗、暗藏灯)与材质对比(大理石、木饰面),打造出兼具精致美学与实用功能的居所,适配社交、休憩等多元生活场景。
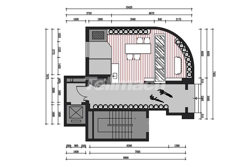
户型分析
功能分层清晰:低层含双车位车库 + 影音室等辅助空间;中层为餐客厨 + 卧室,满足日常起居;上层设多卧室 + 双露台,强化休憩;另有休闲层(客厅、品茶区)与储物层,空间配置完善,公私分区明确,适配多元生活场景

会客厅
会客厅以暖棕色调为基底,圆形吊顶灯与弧形沙发强化柔美感;艺术置物架与装置屏风增添设计感,天窗引入自然光线,让空间在温润氛围中兼具互动功能,适配休闲与轻社交场景。

餐厅
餐厨区以法式石膏线为基底,白 + 浅木色调显轻盈;墨绿家具与蓝色背景墙形成视觉焦点,大理石岛台与玻璃酒柜强化轻奢质感,弧形门洞柔化空间边界,让开放区域既适配社交互动,又兼具优雅氛围。

老人房
卧室以法式石膏墙与水晶吊灯铺垫精致感,纯白软包床搭配暖棕软装,平衡柔美与温度;弧形衣帽间与精致边几呼应细节,柔纱帘引入自然光线,营造出兼具仪式感与舒适感的私享休憩空间。

书房
书房以法式线条与玻璃柜铺垫优雅感,悬浮书桌与艺术单椅强化设计感;暗藏灯与自然光结合,柔化空间氛围,侧边书架拓展收纳,让区域既适配办公效率,又兼具休闲阅读的松弛感。

梳妆区
梳妆区利用走廊角落打造嵌入式功能区,法式线条与圆形家具显柔美;暗藏灯与艺术挂画提升精致感,开放格与抽屉兼顾置物与收纳,让狭窄空间既实用,又成为兼具美学的过渡节点。

卫生间
卫浴间以黑 + 白极简配色为核心,隐形收纳与悬浮台盆提升整洁感;长虹玻璃门保障隐私又显通透,暗藏灯与智能镜强化现代质感,冷调材质与暖光结合,打造出精致实用的卫浴空间。

阁楼
斜顶卧室利用天窗引入自然光线,弱化空间压抑感;浅木色与浅灰软装显柔和,玻璃展示柜兼顾收纳与展示,暗藏灯勾勒背景墙层次,让空间在极简框架中兼具休憩与兴趣收纳功能。
