实拍案例
杨枫
钛马赫设计事务所
杨枫作品-国奥村
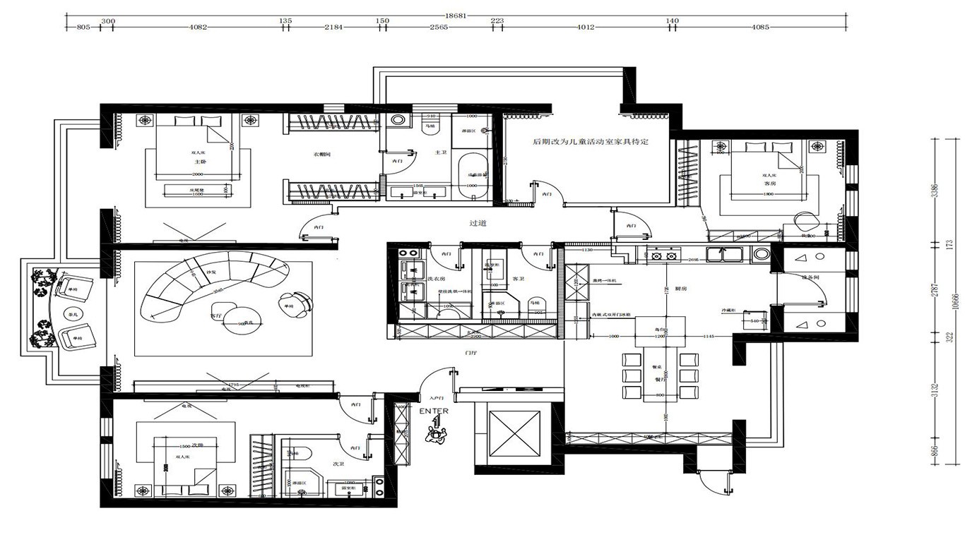
北京市-朝阳区 国奥村 简约风格 191.6㎡
通常我们需要一个舒适的环境和恰当的氛围来释放自己的情绪,我构造空间时更多的考虑如何能让人感受到安静.平和。我们创造复杂的空间表现形式时很简单,很多元素堆砌有迹可循但做到适度的极简,精准表达空间氛围时往往比较难,毕竟取舍需要从全面知识领域里提取精神毫厘之间的表达”

别墅设计师
杨枫
钛马赫设计事务所
设计师的相关案例
杨枫作品-恒大丽宫

此项目风格为现代ins风,侘寂与现代的融合,粗糙的肌理延伸进...

杨枫作品-国奥村

通常我们需要一个舒适的环境和恰当的氛围来释放自己的情绪,...

杨枫作品-鲁园上河村

本方案在布局上突出轴线的对称,豪华舒适的居住空间效果展现...

杨枫作品-万柳书院

因此本案的设计核心则是将经典元素利用现代手法再现,让原本...

杨枫作品-西山美庐

这栋住宅风格仿佛就是客户的性格写照:精致、专注、成熟。从...

算一算我家装修需要多少钱
预约报名