实拍案例
杨枫
钛马赫设计事务所
杨枫作品-鲁园上河村
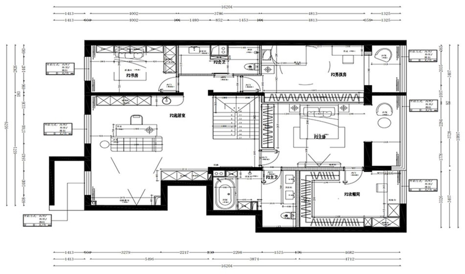
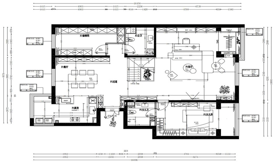
北京市-海淀区 鲁园上河村 简约风格 296.27㎡
本方案在布局上突出轴线的对称,豪华舒适的居住空间效果展现出贵族风格的高贵典雅。细节处理上运用了法式廊柱、雕花、线条,制作工艺精细考究。秉持典型的法式风格搭配原则,餐桌和餐椅均为米白色,表面略带雕花,配合扶手和椅腿的弧形曲度,显得优雅矜贵,而在白色的卷草纹窗帘、水晶吊灯、落地灯、瓶插百合花的搭配下,浪漫清新之感扑面而来。







别墅设计师
杨枫
钛马赫设计事务所
设计师的相关案例
杨枫作品-恒大丽宫

此项目风格为现代ins风,侘寂与现代的融合,粗糙的肌理延伸进...

杨枫作品-国奥村

通常我们需要一个舒适的环境和恰当的氛围来释放自己的情绪,...

杨枫作品-鲁园上河村

本方案在布局上突出轴线的对称,豪华舒适的居住空间效果展现...

杨枫作品-万柳书院

因此本案的设计核心则是将经典元素利用现代手法再现,让原本...

杨枫作品-西山美庐

这栋住宅风格仿佛就是客户的性格写照:精致、专注、成熟。从...

算一算我家装修需要多少钱
预约报名