实拍案例
杨枫
钛马赫设计事务所
杨枫作品-西山美庐
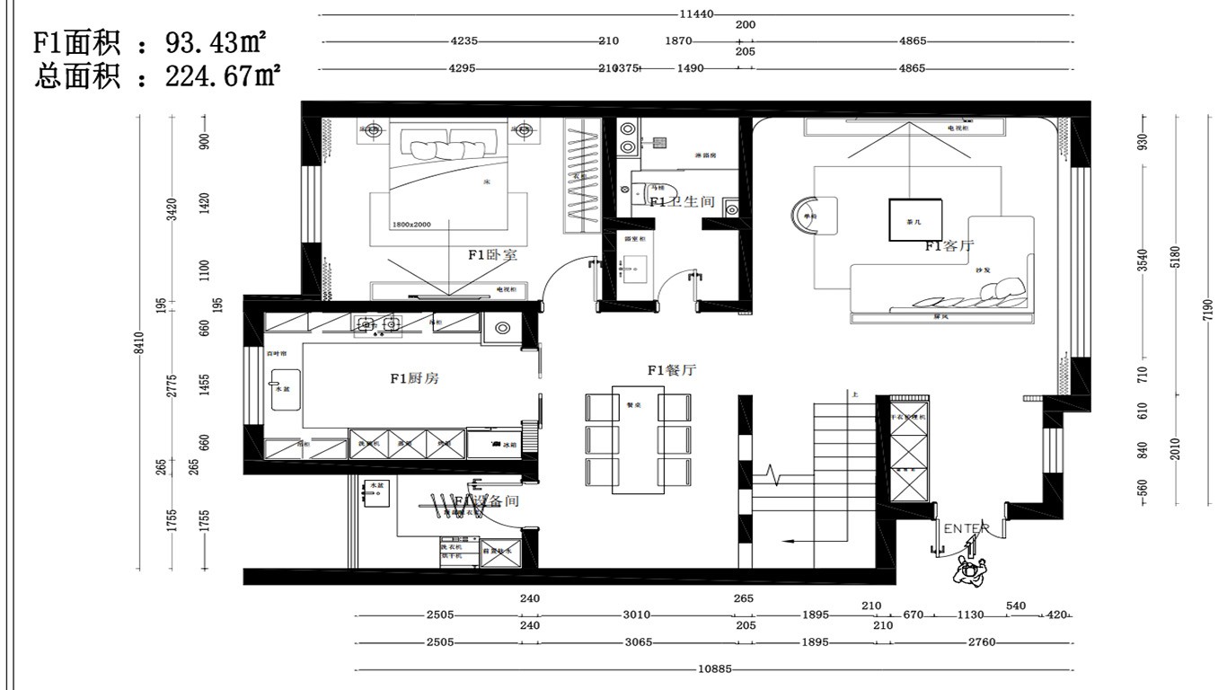
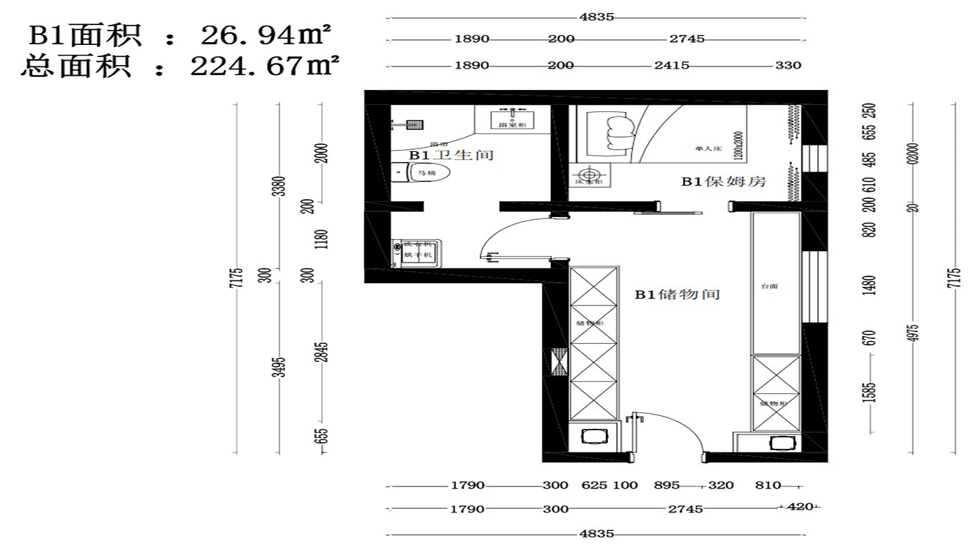
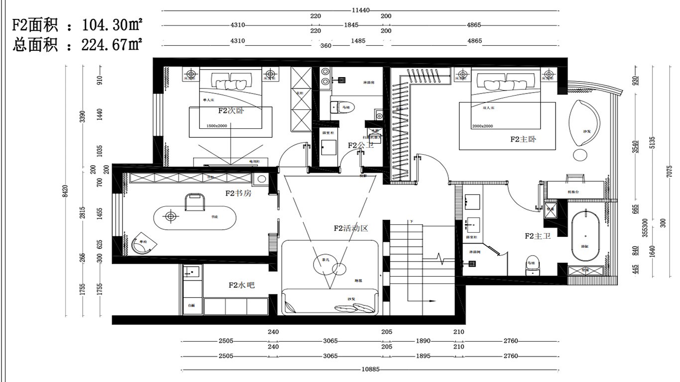
北京市-海淀区 西山美庐 现代奢华 300㎡
这栋住宅风格仿佛就是客户的性格写照:精致、专注、成熟。从而放松和舒适是我想要表达的意图。本方案从空间布局和界限上突破常规的思路,而常规中则又有新意。黑白灰的基色搭配静谧的蓝,跳跃而灵动。在表现的视觉之下,极尽克制,投射出空间的美学与艺术的张力。清新之感扑面而来。








别墅设计师
杨枫
钛马赫设计事务所
设计师的相关案例
杨枫作品-恒大丽宫

此项目风格为现代ins风,侘寂与现代的融合,粗糙的肌理延伸进...

杨枫作品-国奥村

通常我们需要一个舒适的环境和恰当的氛围来释放自己的情绪,...

杨枫作品-鲁园上河村

本方案在布局上突出轴线的对称,豪华舒适的居住空间效果展现...

杨枫作品-万柳书院

因此本案的设计核心则是将经典元素利用现代手法再现,让原本...

杨枫作品-西山美庐

这栋住宅风格仿佛就是客户的性格写照:精致、专注、成熟。从...

算一算我家装修需要多少钱
预约报名